2024년 노원에 새롭게 등장할 하이엔드 오피스텔 마크710 분양사무소에서 1월31일 사업설명회를 하였습니다. 마크710은 오피스텔이 절대적으로 부족한 노원에 새롭게 등장한 고급 오피스텔입니다. 마크710에 대한 정보를 자세히 알아 보도록 하겠습니다.

목차
프리미엄 셀링포인트
편리한 교통환경, 쾌적한 주변환경, 편리한 편의시설까지 모두 다 가진 공실걱정없는 노원지역의 귀한 중소형타입 오피스텔입니다.


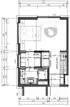
오피스텔 타입 안내
오피스텔 A타입 - 실용적인 공간
| 28㎡A타입 13실 | ||
| 면적 | ㎡ | 평 |
| 전용면적 | 28.07 | 8.49 |
| 계약면적 | 45.14 | 13.65 |


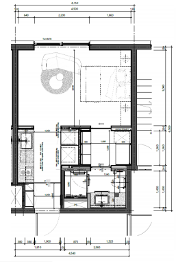
오피스텔 B타입 - 합리적인 공간구조
| 28㎡B타입 13실 | ||
| 면적 | ㎡ | 평 |
| 전용면적 | 27.39 | 8.29 |
| 계약면적 | 44.08 | 13.33 |


오피스텔 C타입 - 쾌적한 공간설계
| 41㎡C타입 13실 | ||
| 면적 | ㎡ | 평 |
| 전용면적 | 41.93 | 12.68 |
| 계약면적 | 66.96 | 20.26 |


오피스텔 D타입 - 현대감각의 간결한 공간
| 41㎡D타입 13실 | ||
| 면적 | ㎡ | 평 |
| 전용면적 | 43.25 | 13.08 |
| 계약면적 | 69.24 | 20.95 |


오피스텔 취득세율
오피스텔 구매시 취득세율(비조정대상지역 대상)
주택수와 상관없이 오피스텔 취득세 4.6%!!

모델하우스 방문
서울특별시 노원구 노해로 457 은성빌딩내 모델하우스가 설치되어 있습니다.
현재 설치되어있는 모델하우스는 D타입 만 있어 다른 타입은 직접 볼 수 없는 것이 아쉽네요.
거실 및 주방 인테리어



침실 인테리어


화장실 인테리어



설치 옵션
- 아일랜드 식탁 및 수납
- 와인셀러
- 빌트인 냉장고
- 드럼세탁기, 건조기
- 광파오븐,식기세척기
- 시스템에어컨, 천정형 환기시스템
- 홈오토시스템 등
마크710 분양 및 임대 문의

새소식!! 노원역 마크710 준공임박!
노원 상가에 새로운 바람을 몰고온 하이엔드오피스텔 마크710이 드디어 오랜 기다림끝에 준공이 임박했습니다!!노원은 더블역세권(7호선, 4호선), GTX-C(예정) 창동역을 이용할 수있는 편리한 교통
a02.sakti-info.com
노원역 하이엔드 오피스텔 마크710 수익성 알아보기
신축 오피스텔이 부족했던 노원구에 새로운 하이엔드 오피스텔이 첫 선을 보입니다. 지하철 더블역세권은 물론이고 동부간선도로와의 접근성이 좋아 교통이 편리하고, 북한산, 도봉산을 바라
a02.sakti-info.com
반응형
'부동산 분양정보' 카테고리의 다른 글
| 새소식!! 노원역 마크710 준공임박! (0) | 2025.09.25 |
|---|---|
| 노원역 하이엔드 오피스텔 마크710 수익성 알아보기 (0) | 2024.02.02 |